Смотреть видео: Ооо проекты и решения петрозаводск



Ооо проекты и решения петрозаводск - найдено 60 фото

Найдено фото: 60

В Петрозаводске хотят изменить внешний вид мобильных торговых киосков Фактор - н
ПЕТРОЗАВОДСК. ПРИБЛИЖЕНИЕ К ВОДЕ Проект города у воды, как опыт переосмысления
Проект города россии петрозаводск
Дизайн-код для ларьков введут в Петрозаводске
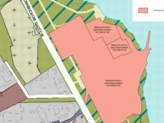
Торговый комплекс "Лента" в Петрозаводске
Вакансии в компании Технические Решения. Начни работу в Технические Решения
Древлянка-8 - новый микрорайон Петрозаводска " в блоге "Жилищное строительство"
Сколько и как зарабатывают партнеры "Персонального решения"?
Компания ООО "Промпроект": отзывы, официальный сайт, телефон, адрес. Архитектурн
Горожане поддержали проект бюджета Петрозаводска на 2022 год и плановый период 2
Власти Петрозаводска нашли решение проблемы незаконной торговли на Древлянке - "
ПЕТРОЗАВОДСК. ПРИБЛИЖЕНИЕ К ВОДЕ Проект города у воды, как опыт переосмысления
Онежская набережная - "Республика"
Компания "Век" объявила о старте продаж квартир в доме № 8 ЖК "Каскад" - "Респуб
Обвал дорожного полотна произошел в Петрозаводске из-за прорыва водопровода Петр
Амбулатория в карельском стиле появится в отдаленном районе Петрозаводска - МК К
Петрозаводский Городской Совет Профильная комиссия Петросовета поддержала измене
Приемные отделения больниц Карелии переделают под один дизайн Петрозаводск ГОВОР
Планируется приватизация бывшей загородной базы Детско-юношеского центра Петроза
ДЕПУТАТЫ ПЕТРОСОВЕТА ОТ КПРФ СЧИТАЮТ, ЧТО РАБОТУ МЭРА ПЕТРОЗАВОДСКА ВЛАДИМИРА ЛЮ
Комиссия утвердила дизайн-проекты благоустройства в Петрозаводске АиФ Карелия
ДЕПУТАТЫ ПЕТРОСОВЕТА ОТ КПРФ СЧИТАЮТ, ЧТО РАБОТУ МЭРА ПЕТРОЗАВОДСКА ВЛАДИМИРА ЛЮ
Оптимальные Решения, бухгалтерские услуги, Лесной просп., 51, стр. 1, Петрозавод
Парфенчиков поручил открыть еще один первый класс в самой крупной школе Петрозав
На Жасминовой, жилой комплекс, Фонтанный пр., 22, Петрозаводск - Яндекс Карты
Петрозаводские фонтаны готовы к новому сезону. Выяснили, когда он начнётся - Обс
Золото, золота цепь в Петрозаводске.
Официальные новости ПКГО. Канал Администрации Петропавловск-Камчатского городского округа https://www.pkgo.ru/ Наше сообщество во ВКонтакте https://vk.com/pkgo_officiall Наша группа в Одноклассниках https://ok.ru/group/54931284426764 (@ПКГО Официальные новости) — Telegram
Новый крутой сайт петрозаводской мэрии начинает работу сегодня Петрозаводск ГОВО
Петрозаводск продолжит обслуживать организация "ТехРент" - YouTube
ГК "Умные решения" - YouTube
Жилые здания - ООО "АЛЬЯНС-ПРОЕКТ"
Уникальный физкультурно-оздоровительный комплекс открытого типа строится у лицея
Петрозаводский Городской Совет Заседания трех постоянных депутатских комиссий со