Смотреть видео: Проект газификации квартиры в многоквартирном доме



Проект газификации квартиры в многоквартирном доме - найдено 60 фото

Найдено фото: 60

Газоснабжение жилого дома. План
Газоснабжение жилого дома - Искра Газ
Официальное проектирование газопроводов, воздушка, подземка 2021 Сварочные работ
Новости и репортажи
Картинки ПРОЕКТНАЯ ДОКУМЕНТАЦИЯ ГАЗОСНАБЖЕНИЯ
Газоснабжение pdf
Комплект контрольно-оценочных средств по модулю ПМ.01 Участие в проектировании с
Как сделать Проект на газификацию частного дома своими руками и согласование: те
Электродегидратор
Газоснабжение частного дома проект
Фотожурнал Руазел. Страница 1209157
ООО "Приток ВП" - Ремонт и строительство, Сварочные работы, Электродуговая сварк
Как спроектировать газопровод: проектирование системы газоснабжения
План дома для газификации
Проектирование газоснабжения частного дома - 52 фото
Безопасность использования газа в быту - Газпром межрегионгаз Смоленск
МДК 03.02 Реализация технологических процессов эксплуатации систем газораспредел
Подключение газа в квартире: порядок и правила газификации жилья в многоквартирн
Проект ТГВ Газоснабжение 5,7,9-этажного жилого района в г.Самара
Подключение газа к частному дому: монтаж и ввод систем газоснабжения
ГазРемСтрой, construction company, Kotovo, ulitsa Mira, 149 - Yandex Maps
Подработка для студентов! Удаленная работа на дому, не мешающая учебе. Нужно тол
Газификация многоквартирного дома фото - DelaDom.ru
Газоснабжение и газификация многоквартирных домов в Минске, Смолевичах, Жодино и
Основные нюансы и примеры по учету потребления газа - 1 Декабря 2014 - Текущие ф
Как спроектировать газопровод: проектирование системы газоснабжения
Получение ту на газоснабжение частного дома: Получение ТУ техусловий на газ, тех
Проекты газоснабжения частного дома чертежи фото Shkola-2.ru
Новости и объявления
Как сделать Проект на газификацию частного дома своими руками и согласование: те
Проектирование систем газоснабжения от компании ООО "Сириус"
Проект электроснабжения? частного дома в компании ГСК
Чертеж Газоснабжение
Газсантехмонтаж, construction company - Yandex Maps
Проекты газоснабжения частного дома чертежи фото Shkola-2.ru
Строительно монтажные организации в Камышевахе: 30 исполнителей с отзывами и цен
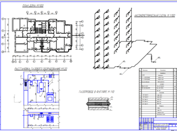
Внутреннее газоснабжение / ГСВ - жилых домов, зданий, предприятий - Чертежи.РУ
Снип газификация индивидуальных жилых домов - Защита прав
Внесение изменений в проект газификации частного дома
Техническое обслуживание ВДГО и ВКГО " Газпром межрегионгаз Тверь